Overview
- Updated On:
- April 16, 2025
- 3 Bedrooms
- 2.0 ft2
Description
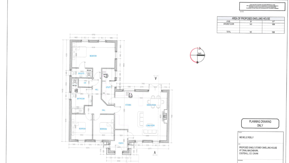
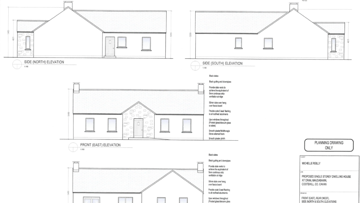
Site For Sale c.2.00 Acre(0.80ha) with FPP for 3 Bedroom Detached Dwelling at Cran, Maudabawn, Co. Cavan.
Site for Sale with FPP under Planning Reference Number 19/118 for a 3-bedroom detached single storey dwelling at Cran, Maudabawn, Cootehill, Co. Cavan.
Conveniently located off the R191 on the L6132 between Cootehill and Bailieborough and a two-minute walk to Dernakesh School.
Property Features
Large site extending to c.2 Acres
Total floor Area 140m2
3 Bedrooms with Master En-Suite
Family Bathroom
Large Kitchen/Dining/Living Room
Utility Room
Full Planning Permission
Ready-to-Go Site
AMV: €50,000
This is a rare opportunity and is sure to have a wide appeal given its location!
For full sale particulars contact Fee & Associates Auctioneers on 049 555 6547







